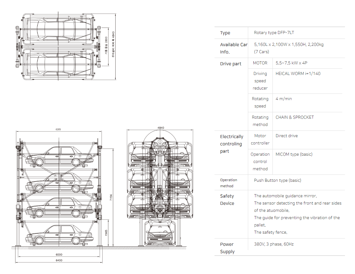
Rotary Type
It is designed that enter the vehicle to parking section(cage) and the cage is circulating from side to side vertically to park the vehicle. It is generally called as mini rotary.
It is easy to install on small area and fewer faults due to simple circle circulation. Its usage is very simple and driver could directly control it. Therefore, it does not need to have additional janitor.
It is also easy to move and reinstall parking facility, and its efficiency values comparing with small area are very high.
It is easy to install on small area and fewer faults due to simple circle circulation. Its usage is very simple and driver could directly control it. Therefore, it does not need to have additional janitor.
It is also easy to move and reinstall parking facility, and its efficiency values comparing with small area are very high.

Perfect safety device, Simple maintenance
It has safety device to prevent accidents fundamentally and janitor is not necessary due to simple operation system.
Perfect safety device
Falling prevention of pallet and falling vehicle accident by chain flaw is prevented fundamentally.
Simple one-touch operation
One-touch operation
Driver is directly operating the system without janitor.
Easy parts replacement
Each part is designed by bolt type instead of
welding type which is easy to replace the parts.





